







Extension des locaux agents du parc des Chanteraines
Lieu
Parc des Chanteraines à Villeneuve La Garenne (92)
Maîtrise d’ouvrage
Conseil Départemental des Hauts de Seine
Maîtrise d’oeuvre
Menhir Architectes
Mission complète
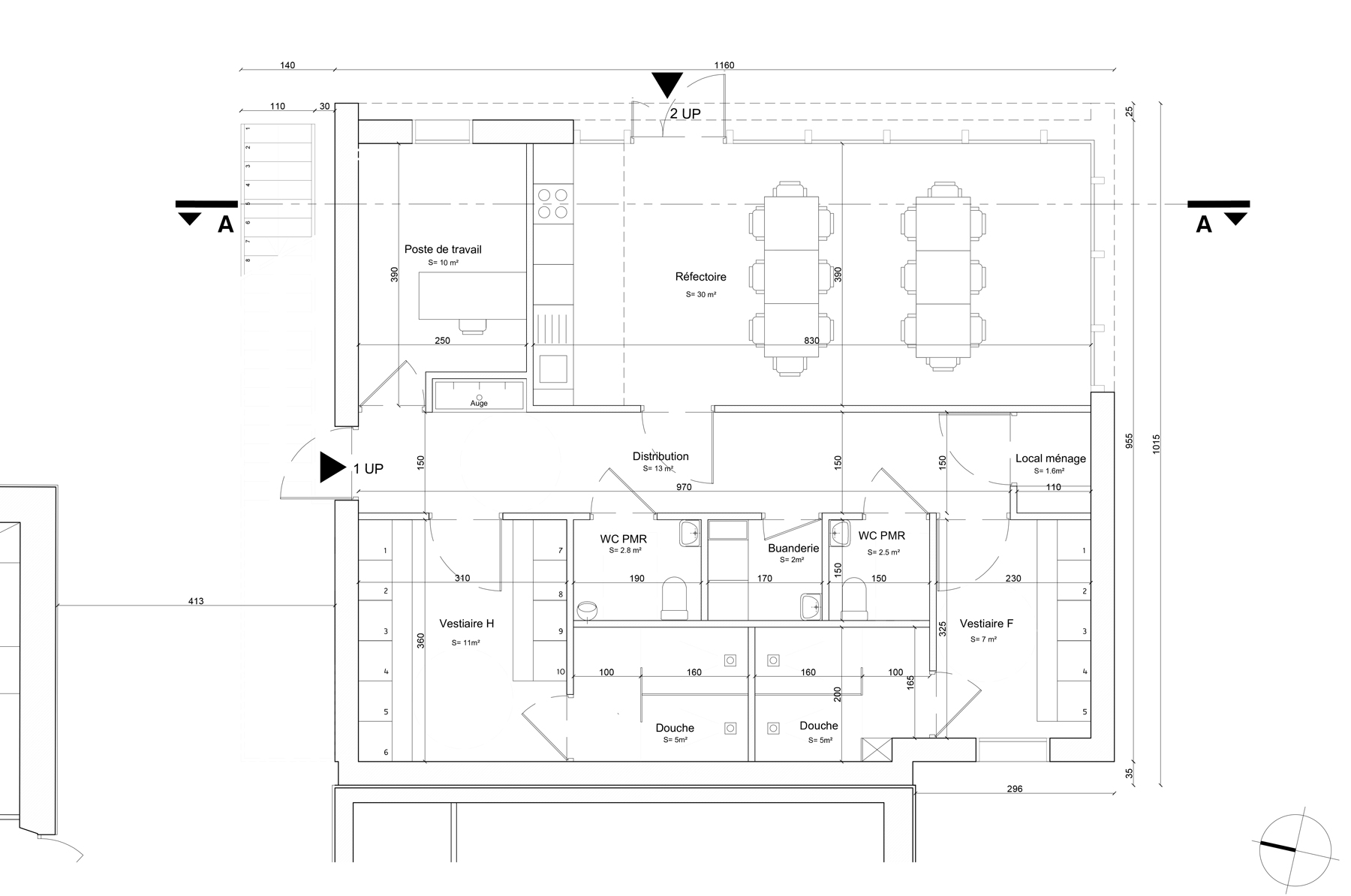
Sdp
150 m2
Calendrier
Livraison 2024
L’ensemble immobilier qui compose la ferme est organisé autour d’une cour qui dessert plusieurs bâtiments, ceux-ci sont typiques de l’architecture rurale du Vexin français.
Le site imposé pour ce projet se situe à proximité direct de la Bergerie, il est placé dans un cheminement temporel entre l’arrivée du personnel depuis le parking et le déroulement de leur journée de travail dans la ferme.
L’objectif était d’édifier un bâtiment de vestiaires et réfectoire qui s’intègre harmonieusement avec les bâtiments existants. Aussi, dès le départ nous avons pris le parti de proposer un projet respectueux des volumes et des matériaux qui existent déjà sur le site, sans pour autant jouer la carte du pastiche.
Nous avons eu comme ambition de concevoir un projet contemporain, tout en reprenant l’écriture architecturale de la ferme existante : teinte de la maçonnerie ; débord de toiture ; tuiles plates, soubassement; drainage en pied de façade ; etc…